MB86 SI Windows 2PT TT And Side OP LR
Features of the MB86SI insulated profile.
Slim and stylish with high thermal insulation
- 3-chamber system with high thermal separation
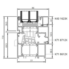
- Frame depth of 77 mm
- Sash construction depth of 86 mm
- EPDM centre seal
- Maximum glass thickness up to 65 mm,
Profile:
MB-86SI systems may be used both in commercial or residential purposes including aluminium facades this is a 3 chamber structure 77 profile with 86 mm sash incorporating a polyamide and with GRP reinforcement with one extra chamber with thermal break
Glazing:
The sealed units are optional thickness up to 65 mm double triple or quad glazed- sealed units with thermal transmittance of U value from =1,0 W/(m2K) according to PN-EN674 as standard.
Triple glazed at U Value =0,5 W/(m2K) coefficient or
Our super-efficient Quad glazed system with krypton with super-efficient U value of 0,3 W/(m2K) also possible to use. Glass with enhanced sound insulation ie acoustic range or safety, laminated, obscure and solar protective as optional extras .
Spacer bar.
standard is our Swiss spacer Ultimate available in various colour options Seals:
Reliable sealing system with central EPDM seal as well as disc and stop seals
Fittings:
High-quality MACO MULTI MATIC fittings with anti-burglary mushroom cams for optimum security, as well as an incorrect operation lock for more convenience.
About the profile.
MB-86 aluminium windows - energy efficiency and design go hand in hand
Outstanding thermal insulation performance is the hallmark of the MB-86 series. The 3-chamber system has wide Thermal breaks with a new shape, which allow an additional chamber in the insulating zone of the profile. The tightness of the window is ensured by a central two-component seal, which serves as a seal and thermal insulation of the space between the sash and the frame.
The aluminium system MB-86 is available in the variants ST, SI and Aero. The MB-86 ST profile is the standard variant of the aluminium system. For additional thermal insulation, an additional
Thermal break is used in the middle profile chambers of the MB-86 SI profile. In the AERO version, the profiles are filled with air gel, a perfect thermal insulation material, for excellent thermal insulation. the slim but very stable frame profiles, which also enable large and heavy unit applications.
Here you can also choose between the variants Standard, Prestige and Style for the glazing bead selection and, for example, choose concealed fittings.
We can offer 270 RAL colours and now also woodgrain, . Long-term functionality is guaranteed by high-quality MACO Multi Matic fittings with an incorrect operation lock and a sash lifter in the turn-tilt version. Microventilation guarantees safe ventilation when the handle is in a transverse position. .
For More information please contact us
Adding product to your cart










