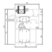
MB70 Door Single side door TT LR no post
- Feartures
- Aluminium profile with 3-chamber system
- Frame depth of 70 mm
- Sash depth of 79 mm
- Wide range of colours in 270 RAL colours
- Effective system for optimal ventilation and water drainage.
Profile:
- 3-chamber aluminium system with multiple thermal break points for excellent thermal insulation. Frame depth of 70 mm; Sash depth of 79 mm
Glazing:
- Double to triple glazing; for thermal insulation, sound insulation, privacy protection and security.
- About Sealed Units
Seals:
- Sealing system EPDM as well as disc and stop seals.
Fittings:
- High-quality MACO MULTI MATIC KS fittings for reliable security and optimal contact pressure.
Profile:
- Windows in MB-70 and MB-70HI systems may be used both in individual assembly and in aluminium facades.
Glazing options:
Sealed unit options up to 50mm width
- Double glazed unit with thermal transmittance of U value=1,0 W/(m2K) according to PN-EN674 as standard.
- Triple glazed at U Value =0,5 W/(m2K) coefficient or
- Quad Glazed with krypton with U value U=0,3 W/(m2K).
- We can include Glass with enhanced sound insulation, tempered, safety, anti-burglary, ornament, solar protective.
MB-70 aluminium description.
Aluminium door systems of the MB-70 series are the ideal solution for houses apartments with excellent thermal and acoustic insulation properties ,The construction depth of the flush profiles is 70 mm for outer frames and 79 mm for window sashes. Aluminium profiles MB-70 fromMRGB Glass solutions are designed to look Flush
Our aluminium windows systems have a very low heat transfer coefficient. The Thermal breaks used also have a seal at the contact point between the profile and the thermal break that divide the chamber between the outer and inner aluminium profile into three parts. The omega-shaped Breaks have a width of 34 mm, increase the rigidity of the profiles in relation to flat insulating bars and facilitate the drainage of the profiles.
The Draught deals are EPDM. The massive cellular seals are characterised by their long service life and very good thermal insulation properties. In order to further improve the thermal insulation of the system, special thermal inserts can be used inside the profile (MB-70 HI). The system enables glazing with a thickness of 21 mm to 57 mm for window sashes and from 12 mm to 48 mm for fixed window parts. For commercial applications we can supply wide range of glazing options, including acoustic, security, privacy, heat retentive, solar active solutions please contact us for more information.
Adding product to your cart










