MB86 Bifold doors
- Stable, efficient MB86 profile
- Super Strong 3-chamber profile
- Frame installation depth of 86mm
- Folding sliding door fitting system
- Double, triple or quadruple glazing
- Low thresholds possible.
- Optional thermal break for more thermal insulation
Profile:
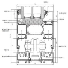
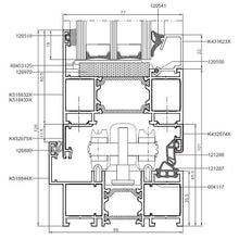
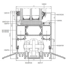
This profile has a three-chamber structure with the structural depth sections 77 mm (frames) and 86 mm (sash).
Glazing:
The sealed unit options are varied up to a maximum thickness 65mm.Double glazed with heat transfer coefficient Ug = 1,0 W/(m2K) according to the PN-EN674 norm as standard.
The possibility to include triple glazing with U value up to = 0,5 W/(m2K).
The possibility to apply glass with enhanced sound insulation, tempered, safety, and laminates, obscured or solar protective options.
Threshold:
Aluminium threshold with thermal break for minimum heat loss.
MB86 Bi Folding system,
Whether in a conservatory, terraces or balconies - Our aluminium Bi folding door system MB-86SI is the ideal solution for large open glazed areas. The aluminium profile is light, but still extremely strong and therefore ideally suited for wide glazing areas. The running rails are attached to the upper frame (top-hung) and to the threshold (bottom-hung). The folding sliding door simply slides along them - doors can open inwards and outwards.
The 3-chamber profile achieves excellent thermal insulation values. In addition, window and cover seals made of EPDM and a centre seal, consisting of a two-component EPDM, protect against driving rain and wind. Optionally, you can also opt for triple glazing or ornamental glass. An extensive range of 200 RAL colours are available upon request
Please contact us for prices and more information.
Adding product to your cart










